ABC Stores #103

Las Vegas, Nevada

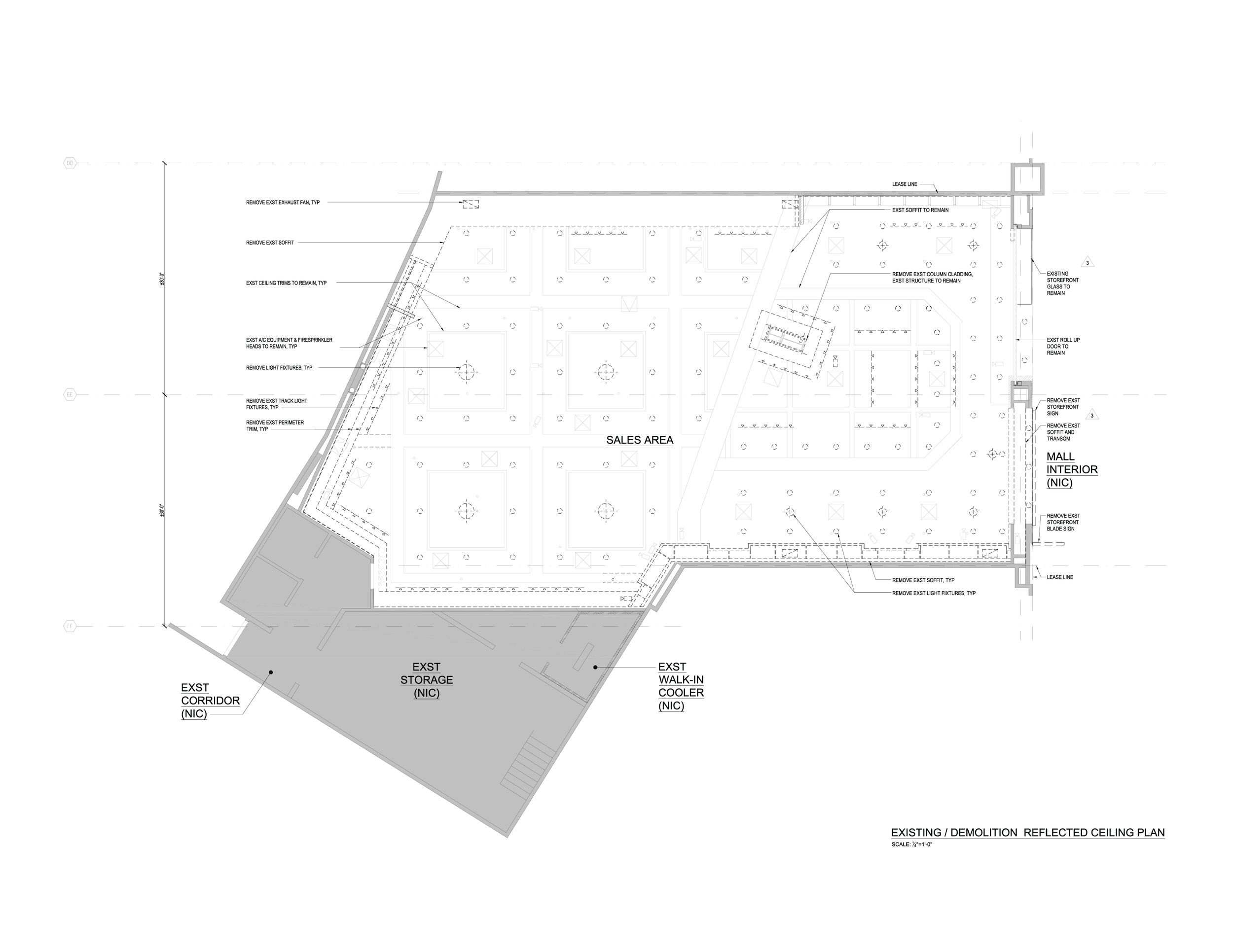
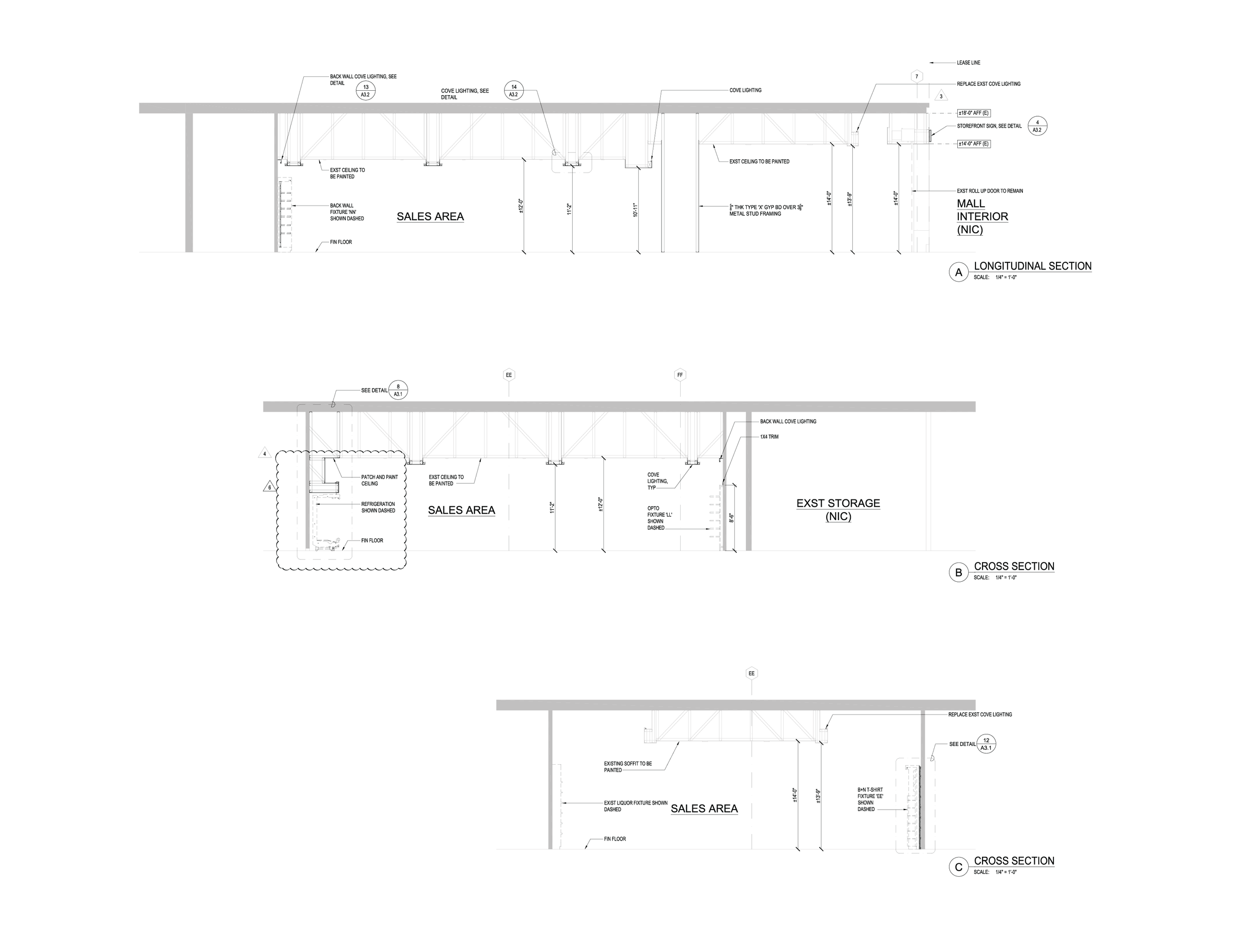
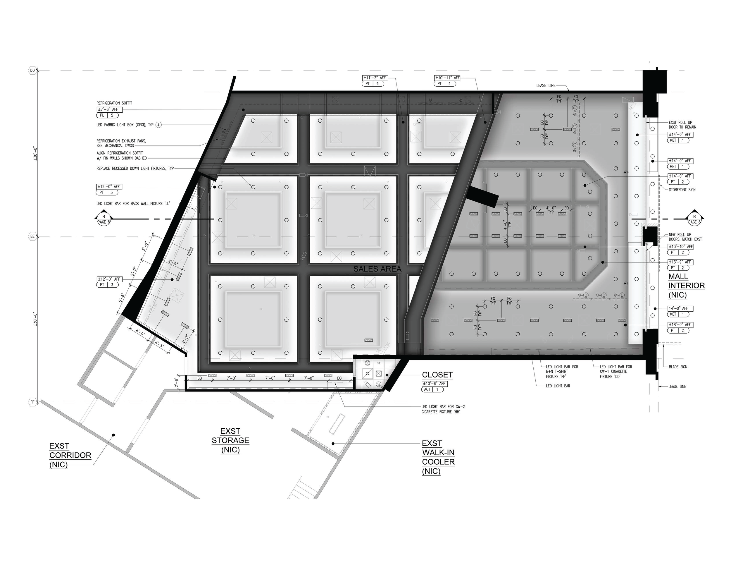
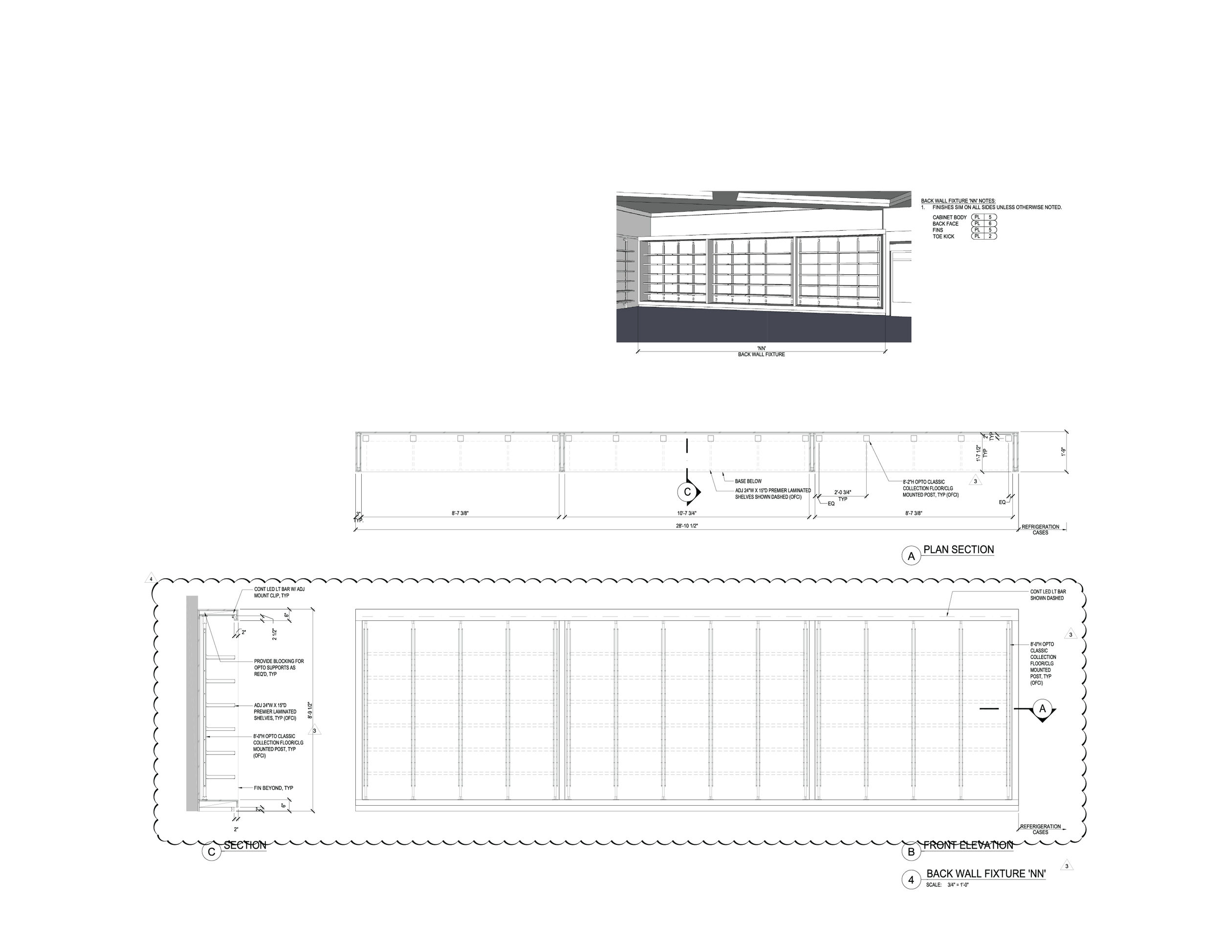
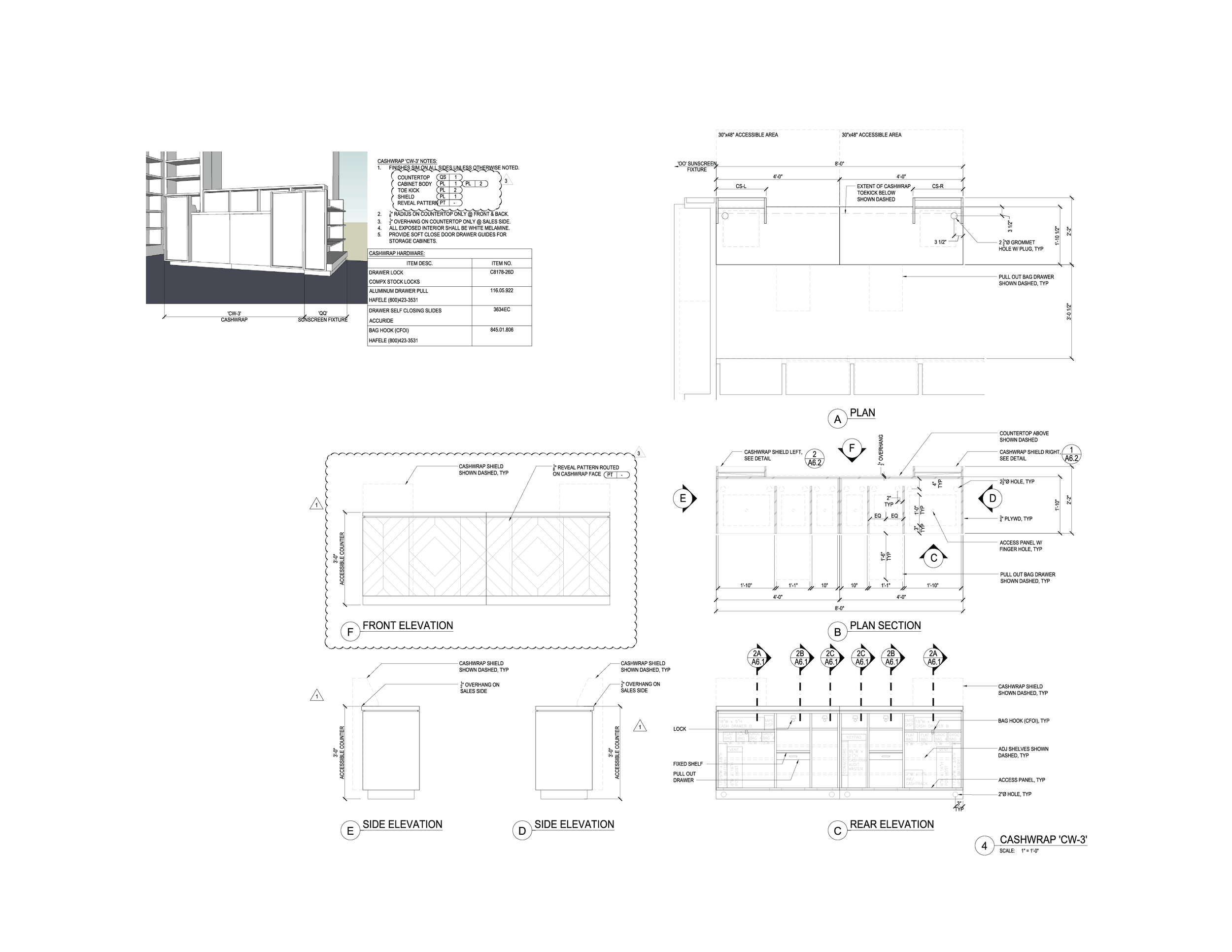
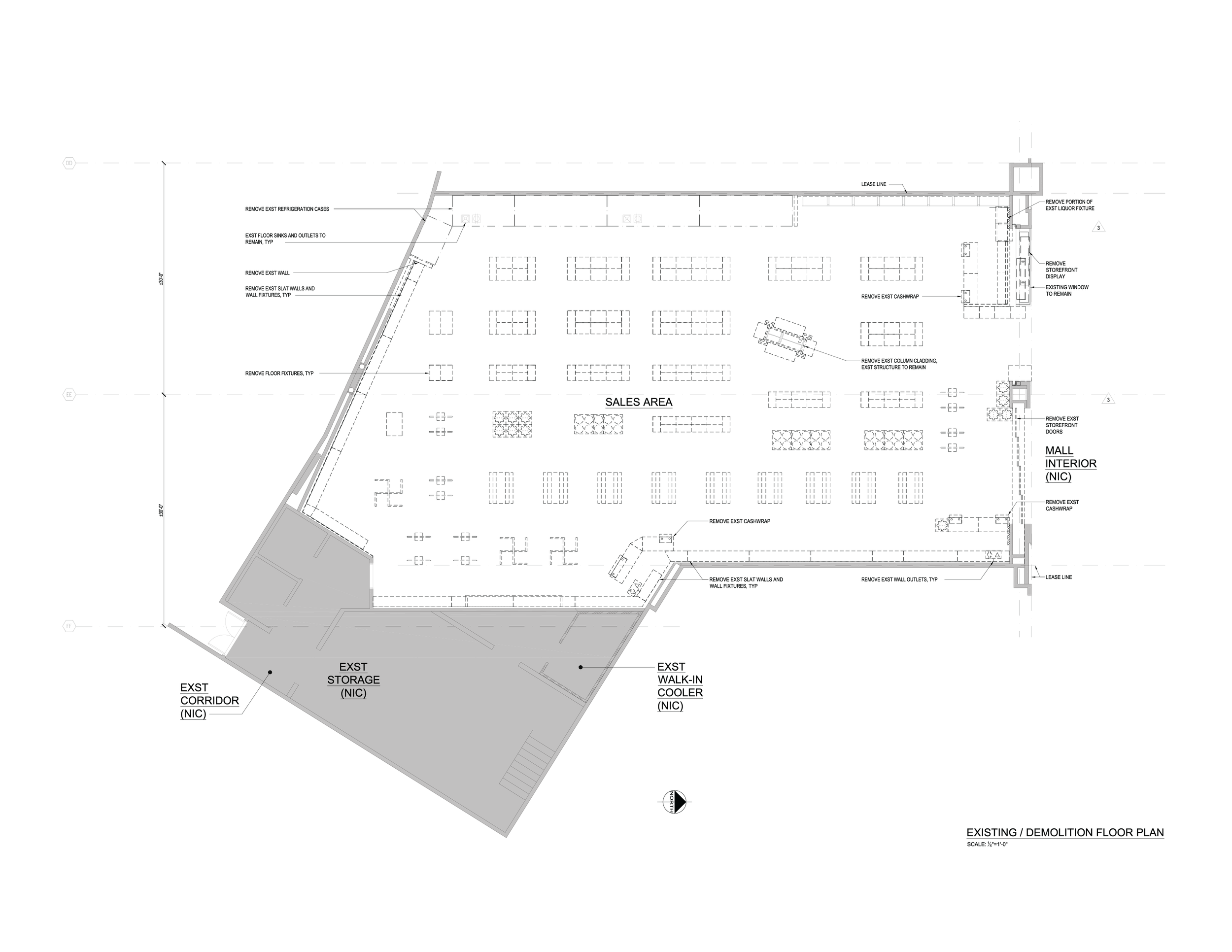
Located within Miracle Mile Shops, ABC Stores No. 103 is a renovation project that needed an light update. As the architectural designer, I was responsible for the project’s design development and production of the construction document set. This project showed how updating the store with bold finishes can shape the feel of the space. SketchUp and Adobe Creative Suite were used for early studies and client presentations, while AutoCAD was used to complete construction documents.

Previous
Previous

Island Country Markets #95

Next
Next

Kahala Residence