Island Country Markets #95

Waikiki, Honolulu County, Hawaii

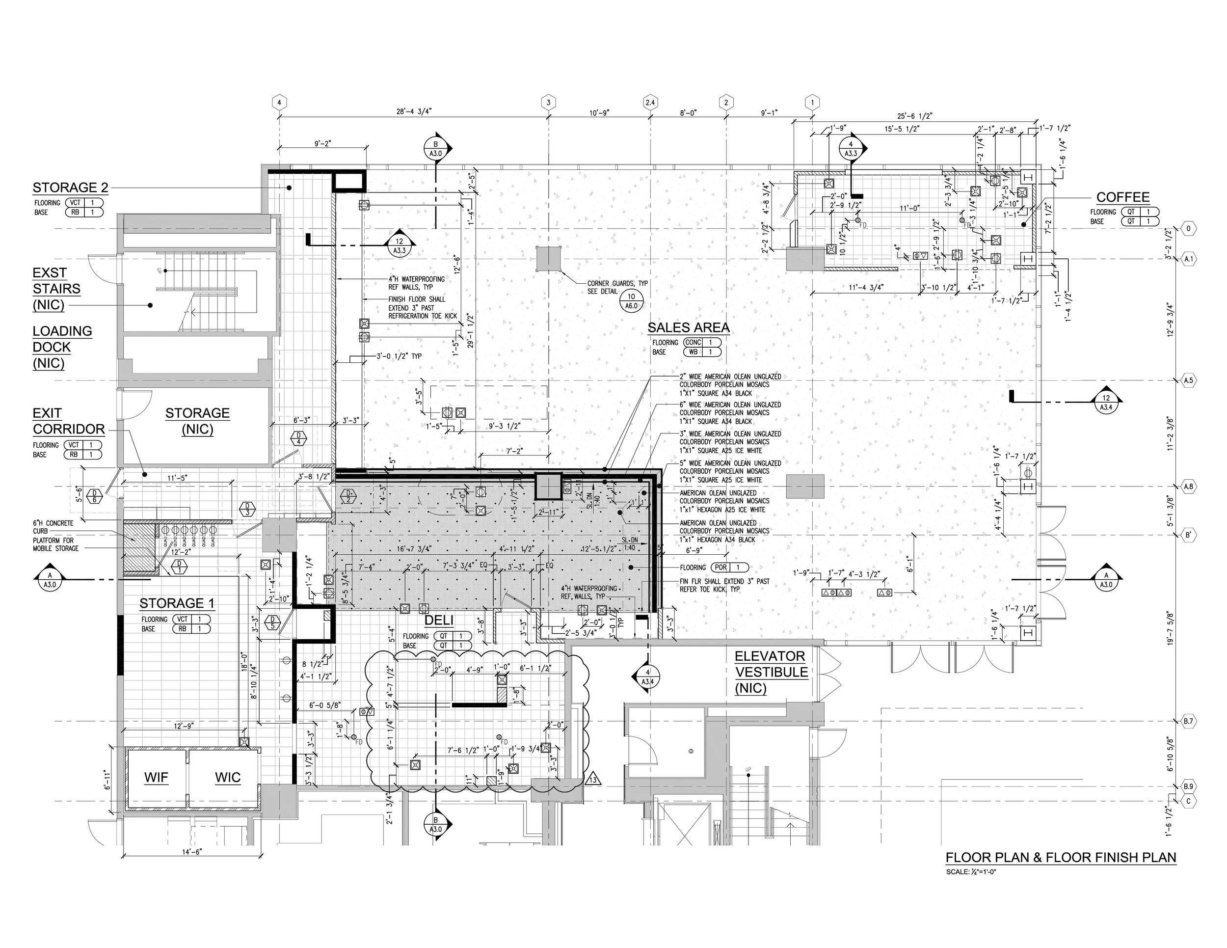
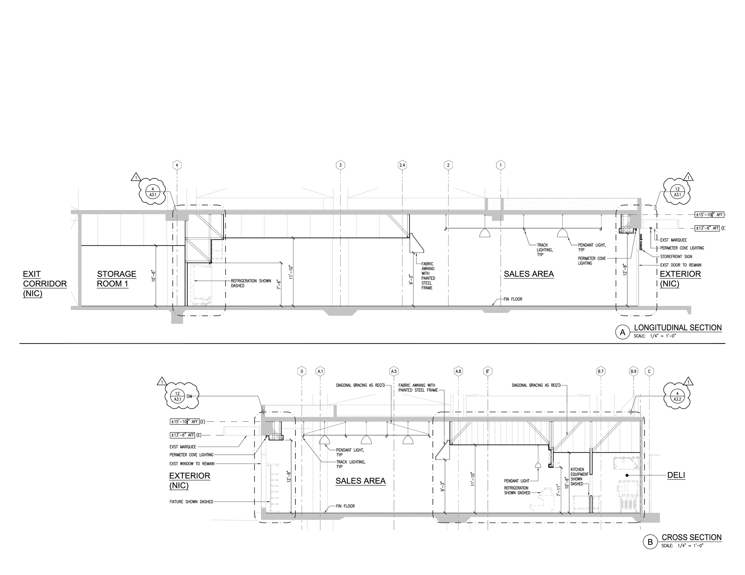
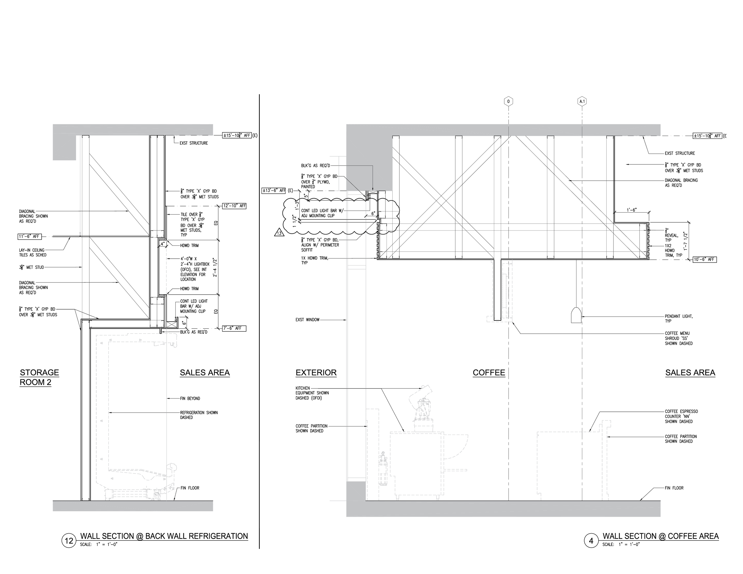
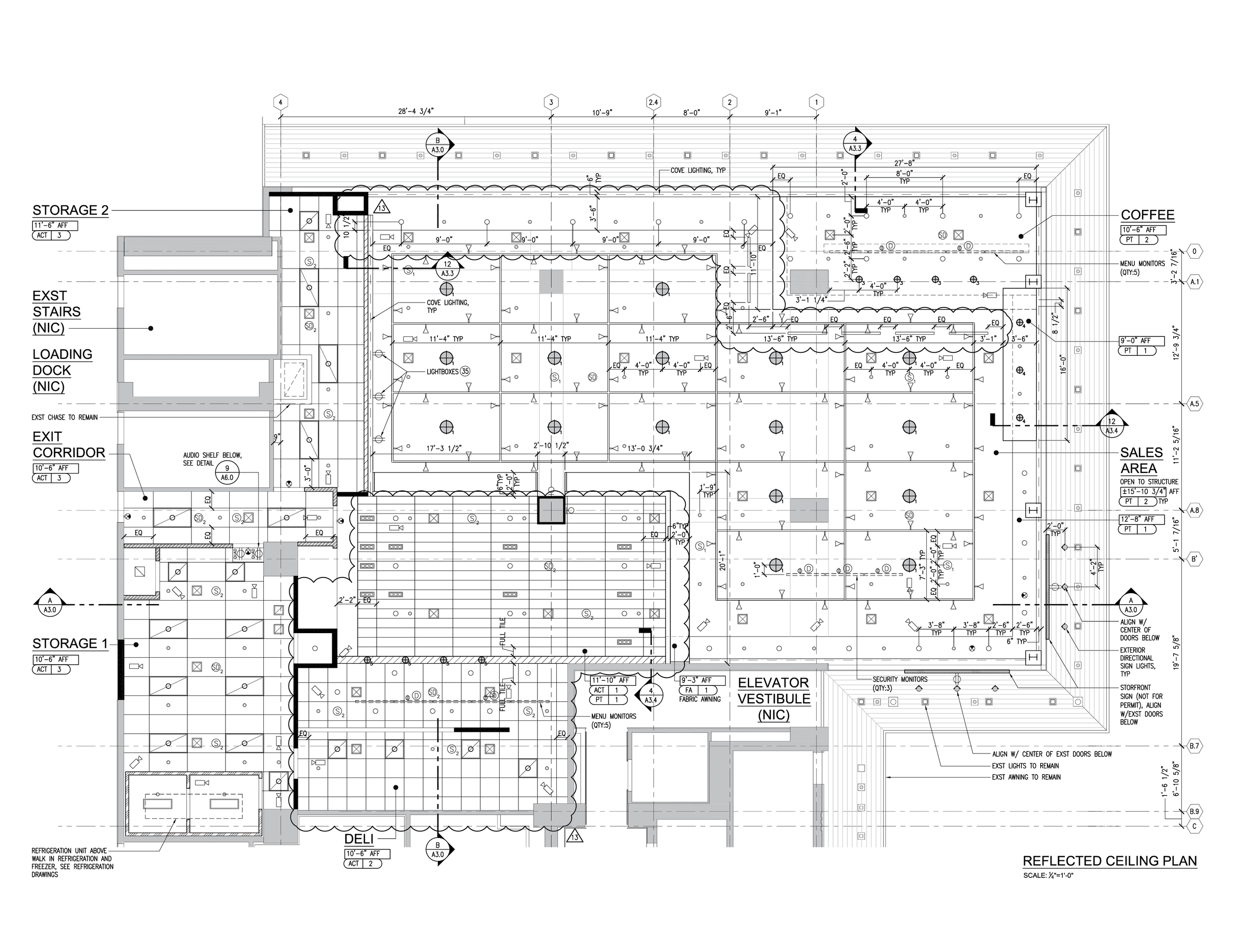
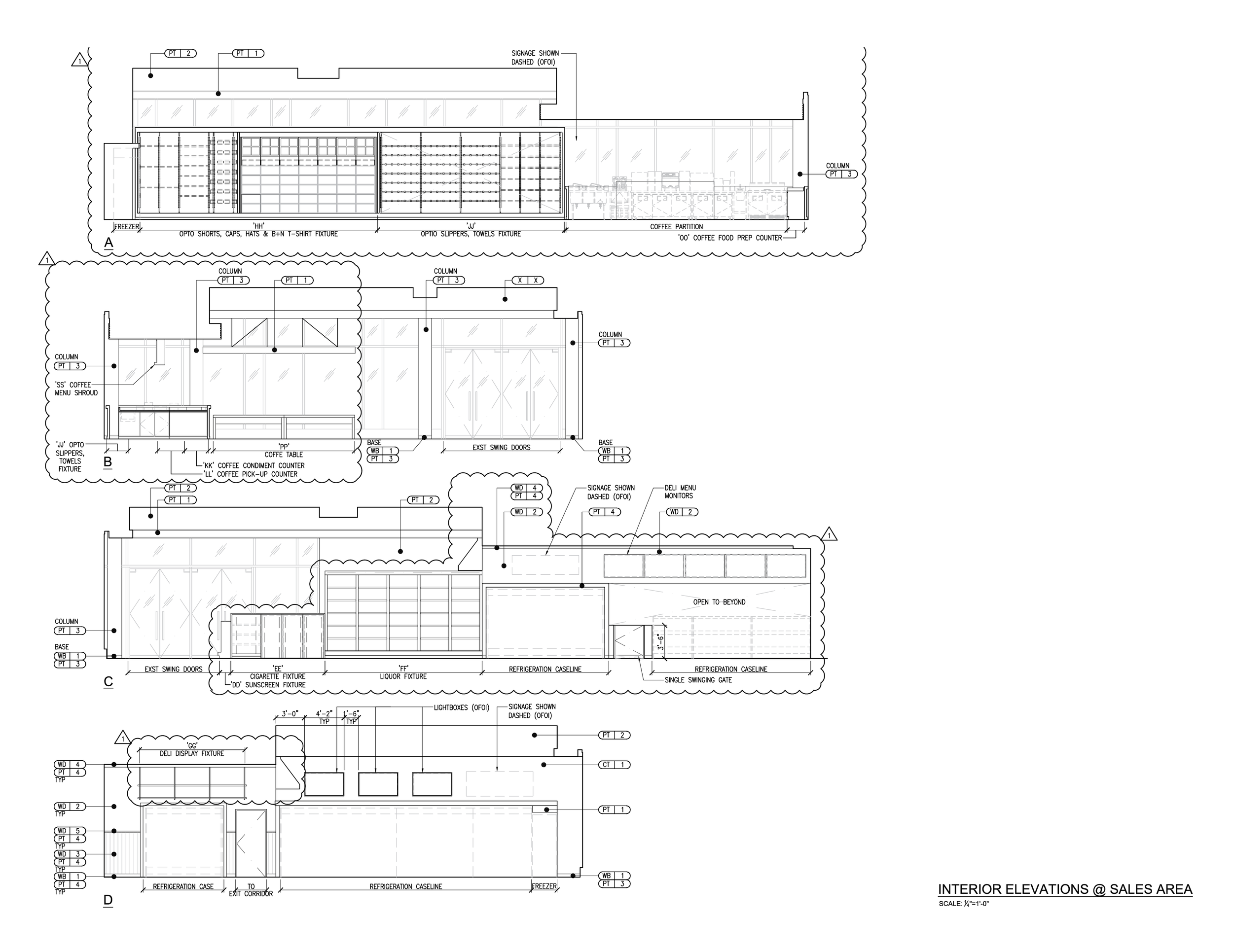
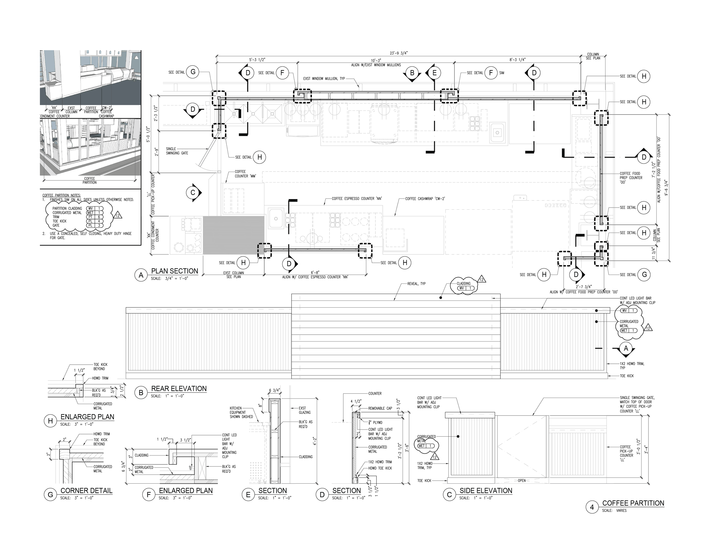
Island Country Markets No. 95 is a tenant improvement project located in the heart of Waikīkī. As the architectural designer, I developed the store’s concept and the production of the project’s construction document set, including custom fixture drawings and signage design. This location features both a deli with a full commercial kitchen and a dedicated coffee department, making internal flow and visual organization a key design challenge. My goal was to highlight each department with its own sense of identity while maintaining a cohesive, modern industrial aesthetic throughout the space. My team and I collaborated closely with mechanical, electrical and kitchen consultants to ensure cohesive integration of systems while maintaining design intent.

Previous
Previous

ABC Stores #201

Next
Next

ABC Stores #103