Kahala Residence

Kahala, Honolulu County, Hawaii

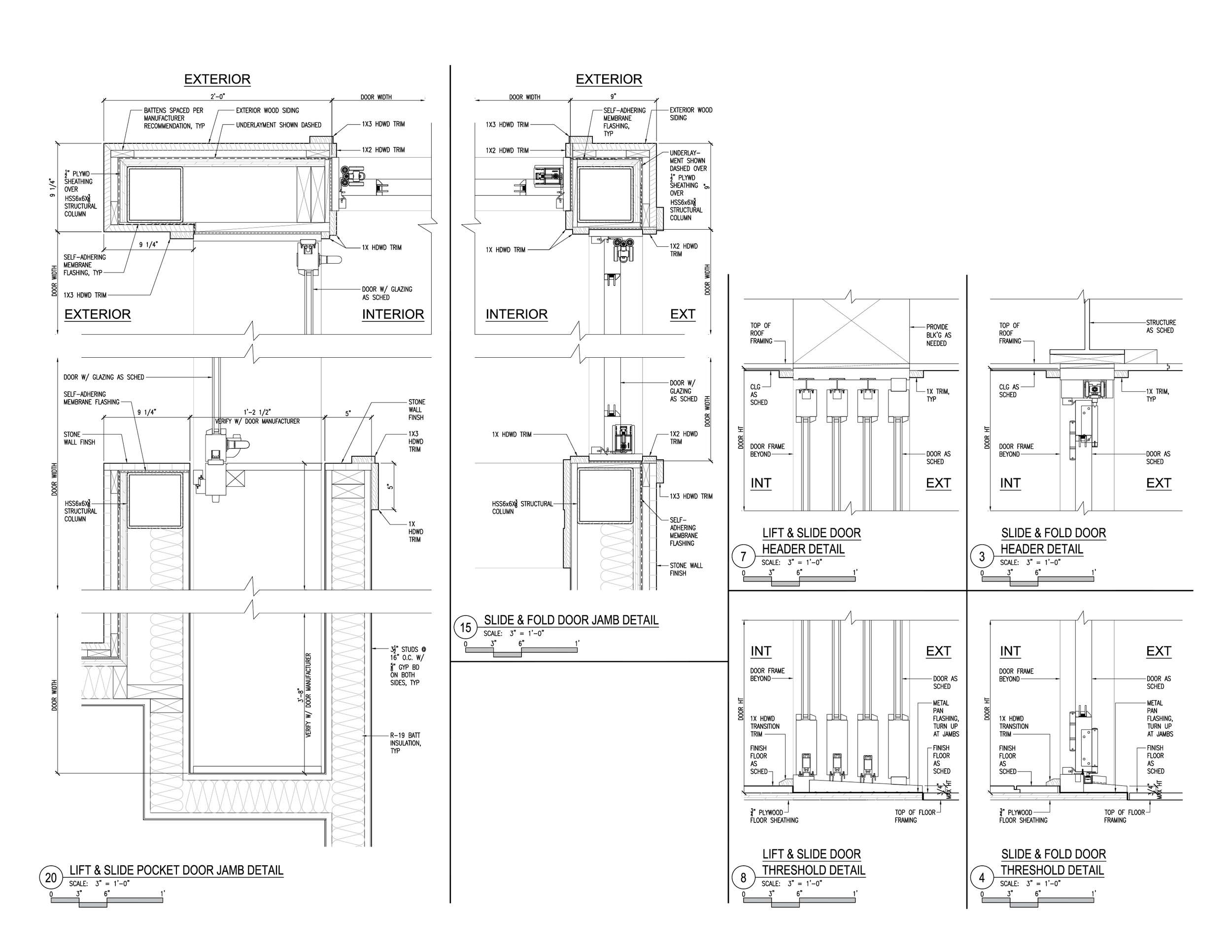
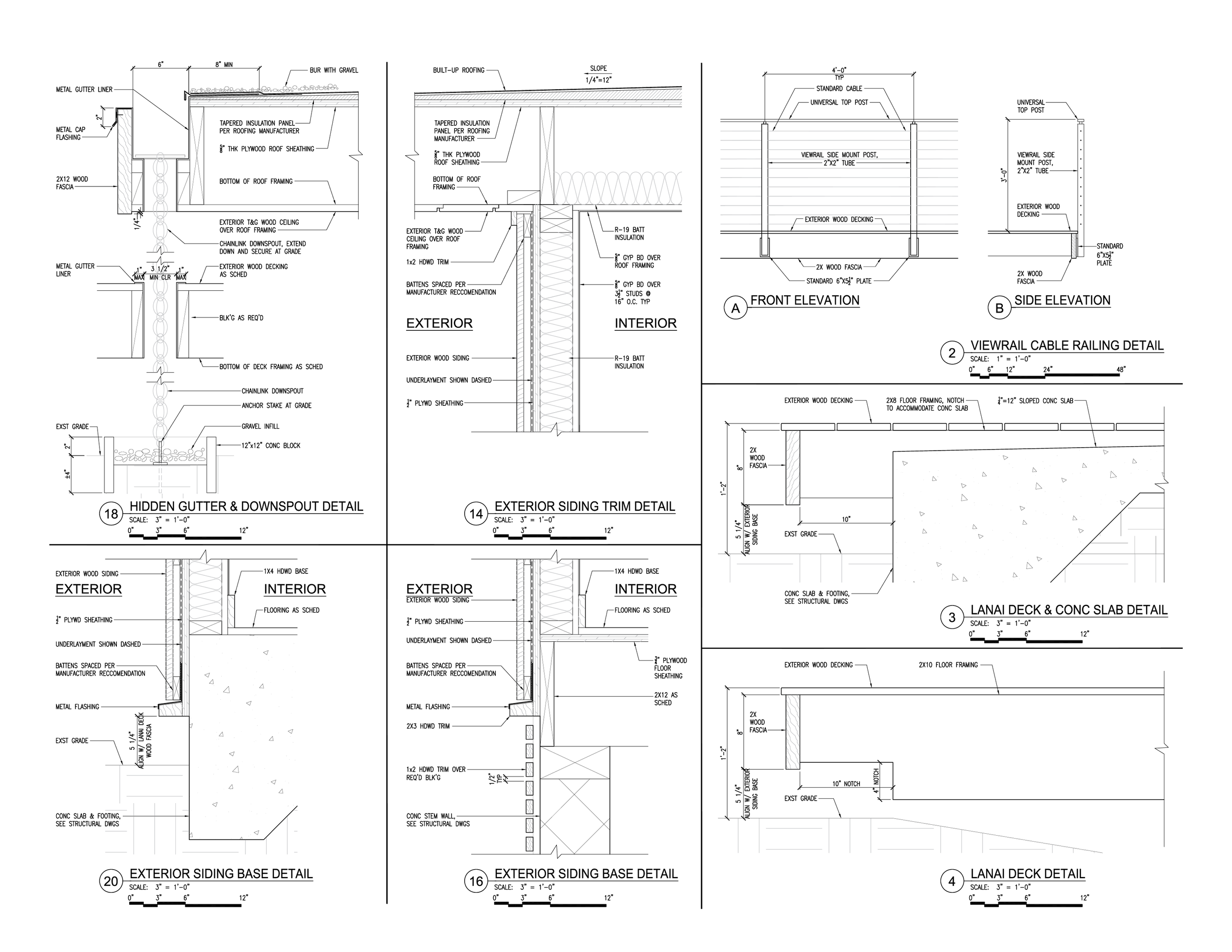
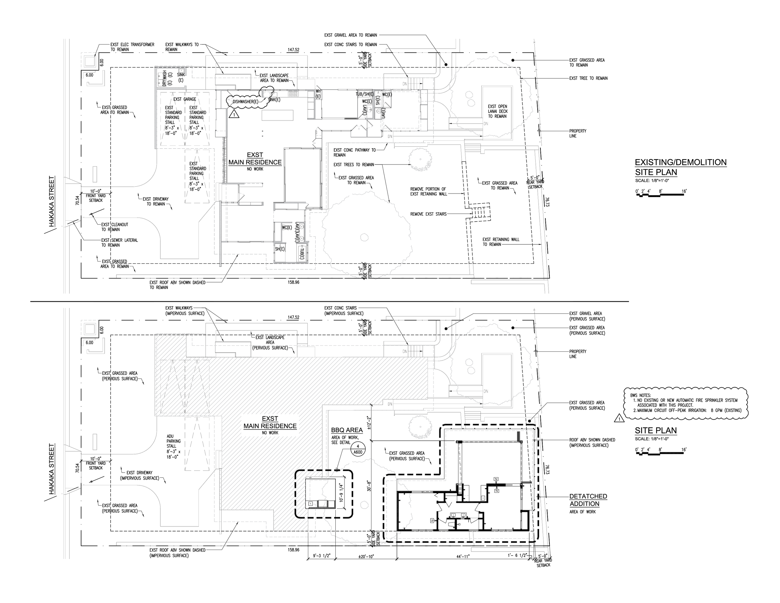
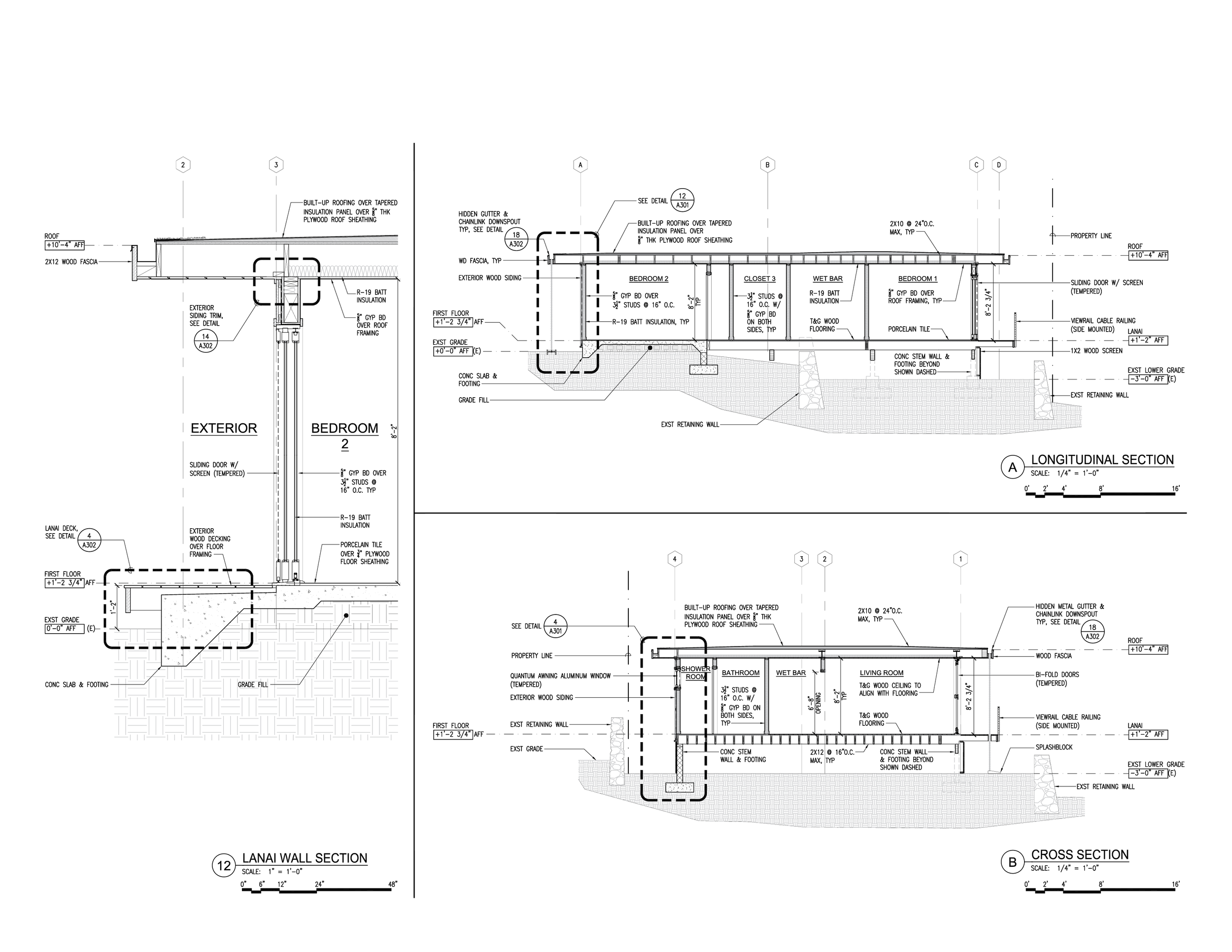
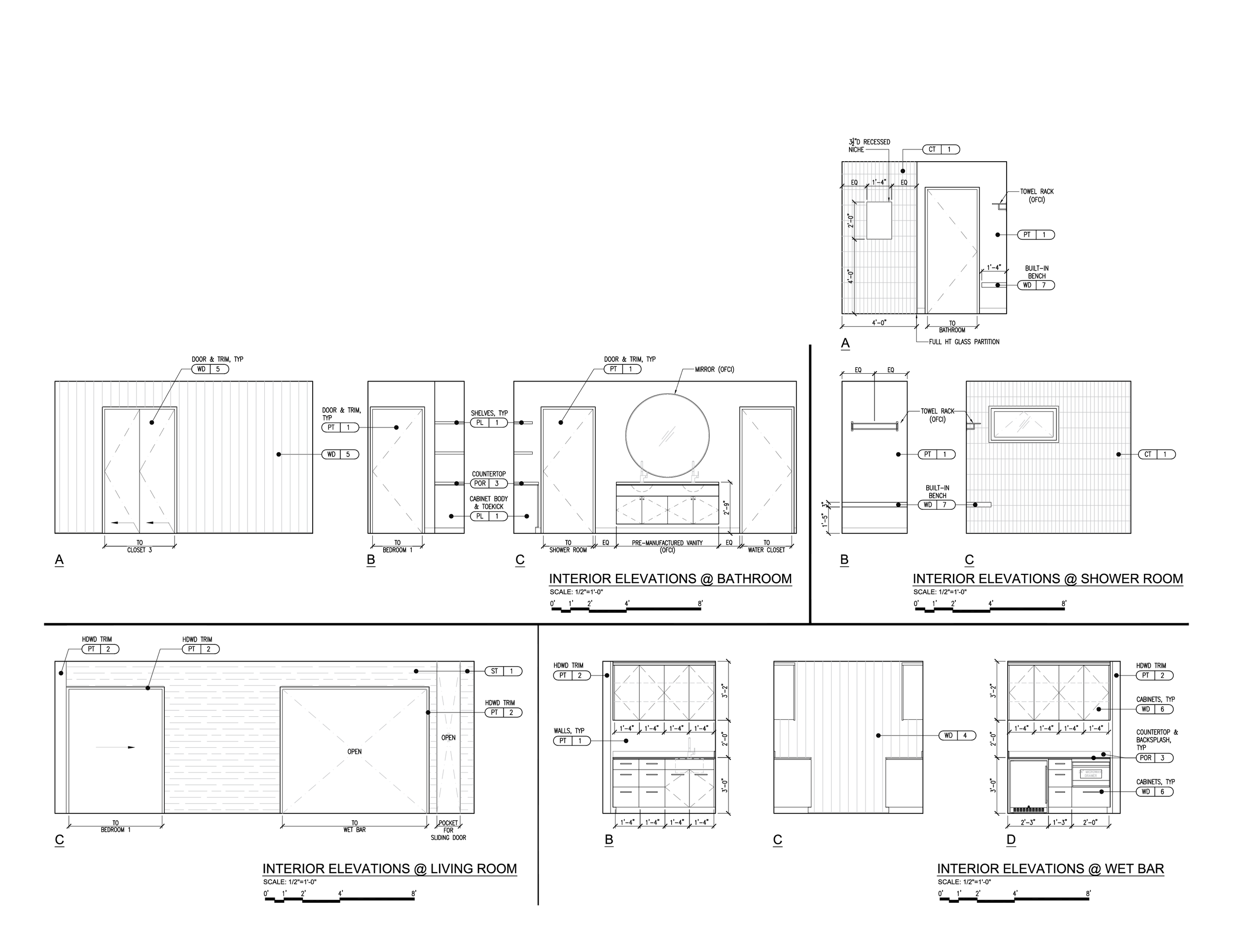
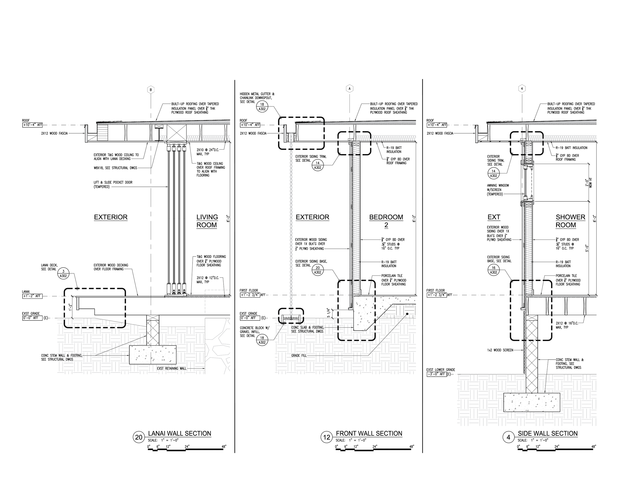
The Kahala Residence was a refreshing project, being that I have focused on commercial retail for a majority of my career. The detached dwelling was designed for a young, growing family who needed additional rooms for their visiting family members. As the architectural designer, I created the project’s full construction document set which included the research of residential and local building code. Concept design was developed in SketchUp, client presentations and signage were created using Adobe Creative Suite, and all construction documents were completed in AutoCAD.

Previous
Previous

ABC Stores #103