Island Country Markets

Waikiki, Honolulu County, Hawaii

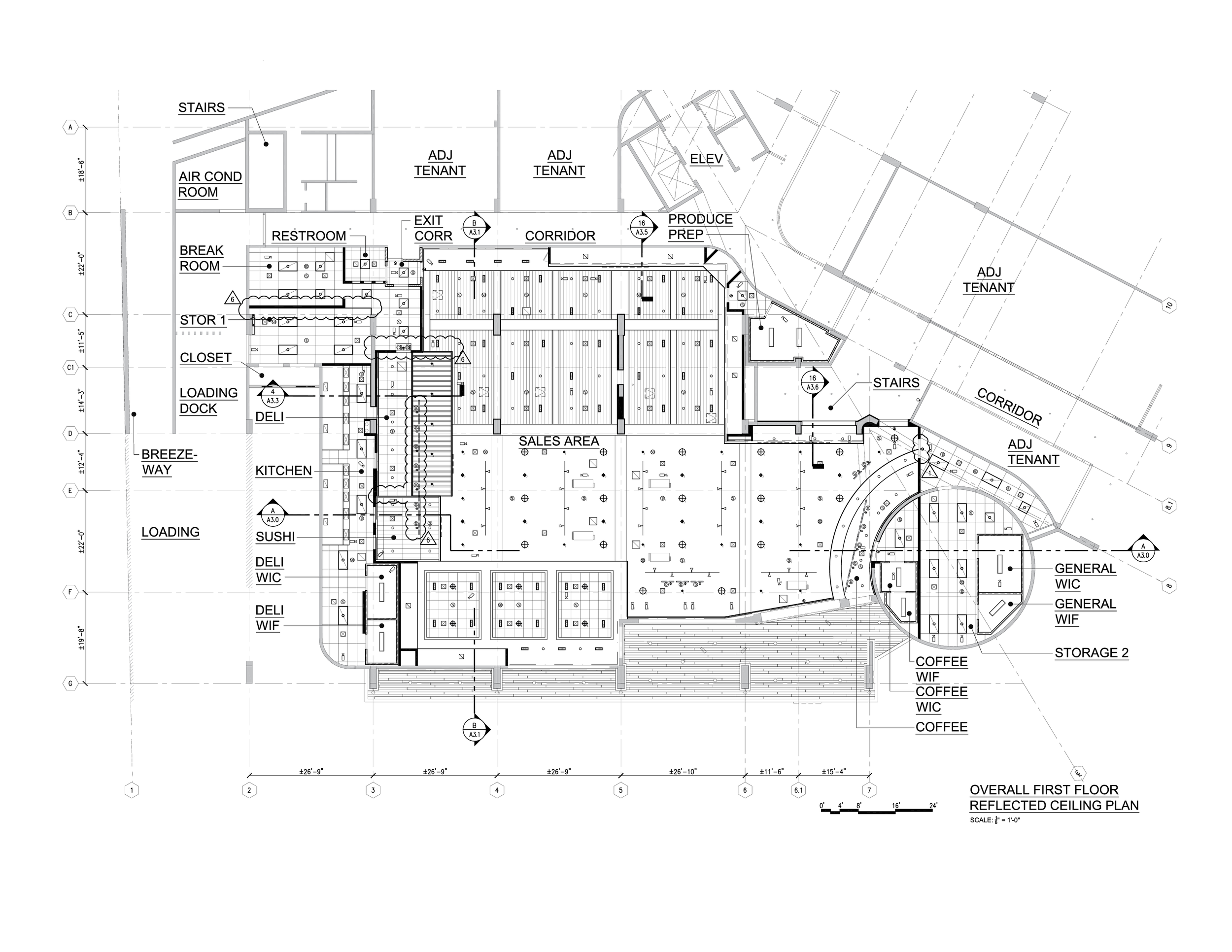
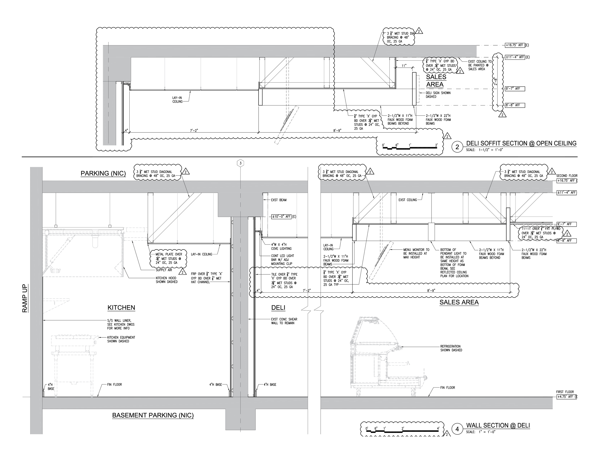
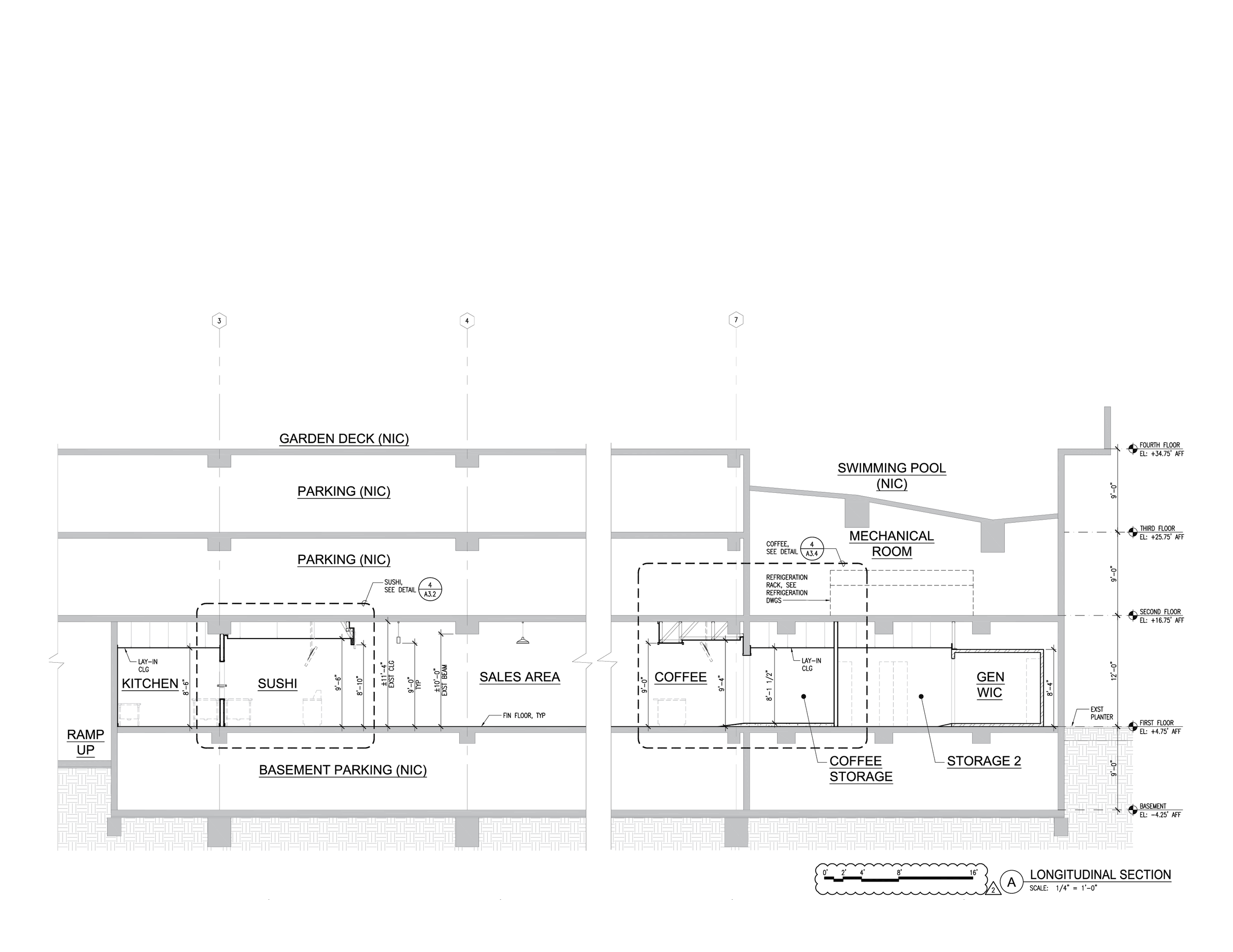
Island Country Markets had big shoes to fill when it moved into the old Wailana Coffee House space on the corner of Ala Moana Boulevard and Ena Road in Waikiki. An “Island-Industrial” style would be the best way to describe the interior design motif. My architectural designer role for this project was to create design options for each department using Sketchup and Lumion), develop construction documents including fixture detail drawings, and design graphic signage in Adobe Creative Suite.

Next
Next

ABC Stores #39